--:--:-- London, UK

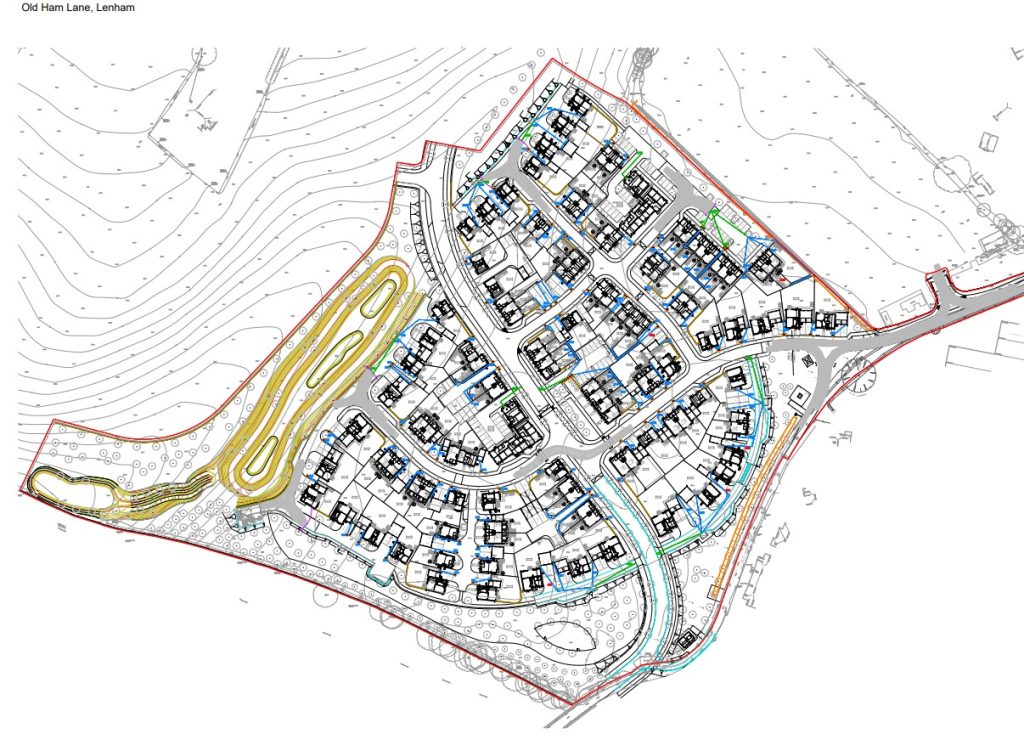
Lenham
Kent

Residential interior solutions delivering precision and scale at Old Ham Lane.

View Details
Lenham
Thanet

Thanet
Phase 10

Advanced interior partitioning for major residential developments.

View Details